About 903 Misty Meadow Boulevard
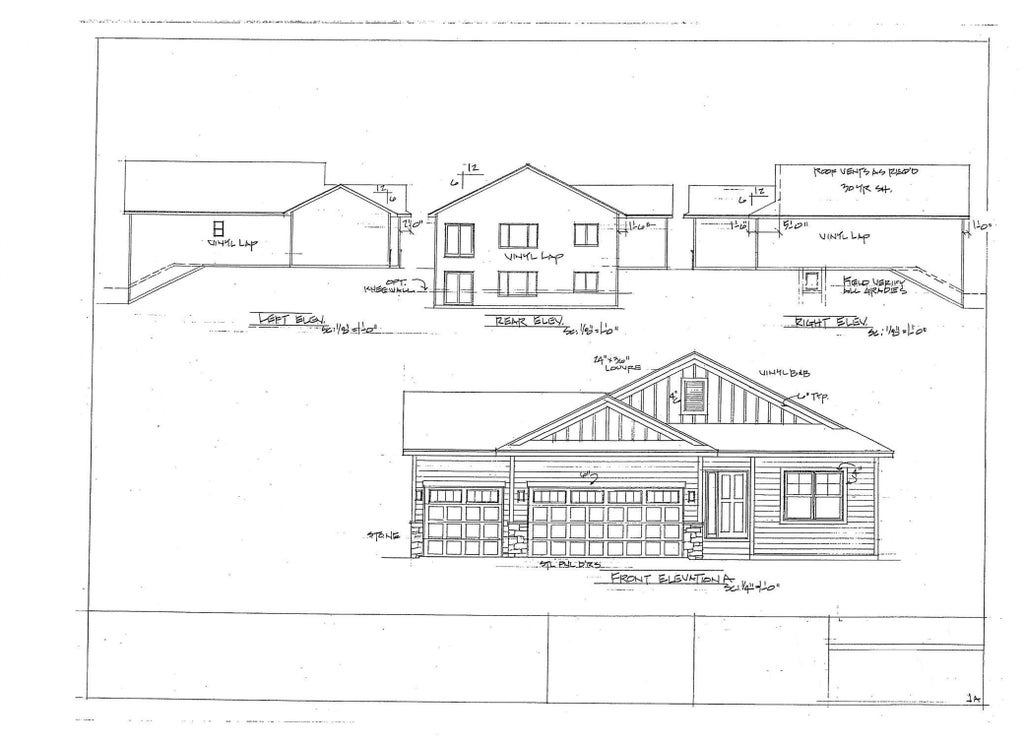
Note this is a To Be Built Home and nothing will be started until it is sold. Looking for an affordable rambler design, the Mirabel rambler by Drake Construction Inc offers 2 Bedrooms, 2 baths and 1409 square feet finished on the main level plus a full daylight window basement. Nice mudroom off the garage entrance with a sitting bench and adjoining laundry room. Open concept design on the kitchen/dining & great room with 9 foot flat ceilings. The kitchen offers a center island with a snack bar overhang, corner pantry closet, granite kitchen countertops, an LG stainless steel kitchen appliance package and easy care LVP flooring. The Great room has a large 3 wide window for more natural lighting. Beautiful wood/iron railing system. The primary bedroom is on the opposite side of the house from bedroom #2 for more privacy. The primary bathroom offers a double sink vanity, an enclosed water closet with a window, a linen closet and a 3x4 fiberglass shower bay plus a large walk in closet. The basement is set up for a future rec room, 2 more bedrooms and a 3/4 bath. Lots of house for the money!
Features of 903 Misty Meadow Boulevard
| MLS® # | 6809570 |
|---|---|
| Price | $434,650 |
| Bedrooms | 2 |
| Bathrooms | 2.00 |
| Full Baths | 1 |
| Square Footage | 1,409 |
| Acres | 0.34 |
| Year Built | 2025 |
| Type | Residential |
| Sub-Type | Single Family Residence |
| Style | Single Family Residence |
| Status | Active |
Community Information
| Address | 903 Misty Meadow Boulevard |
|---|---|
| Subdivision | Misty Meadows 3rd |
| City | Buffalo |
| County | Wright |
| State | MN |
| Zip Code | 55313 |
Amenities
| # of Garages | 3 |
|---|---|
| Garages | Attached Garage, Asphalt, Electric, Garage Door Opener |
| Is Waterfront | No |
| Has Pool | No |
| Pool | None |
Interior
| Appliances | Air-To-Air Exchanger, Dishwasher, Disposal, Electric Water Heater, Exhaust Fan, Microwave, Range, Refrigerator, Stainless Steel Appliances |
|---|---|
| Heating | Forced Air |
| Cooling | Central Air |
| Fireplace | No |
Exterior
| Roof | Age 8 Years or Less, Architectural Shingle, Pitched |
|---|---|
| Construction | Brick/Stone, Metal Siding, Vinyl Siding |
School Information
| District | Buffalo-Hanover-Montrose |
|---|
Additional Information
| Days on Market | 6 |
|---|---|
| Zoning | Residential-Single Family |
| Foreclosure | No |
| Short Sale | No |
| Taxes | $576 |
Listing Details
| Office | Counselor Realty, Inc |
|---|
